ASİLAY PROJE 1

ASİLAY PROJE 1

Zamanın Ötesinde Bir Güzellik: Mimari Bir Masal

Proje Hakkında

KARTEPE MAŞUKİYE’DE SAPANCA GÖLÜ MANZARALI AKILLI LÜKS VİLLA! 🏡
Doğanın içinde, teknolojinin merkezinde ayrıcalıklı bir yaşam sizi bekliyor…
 
Kartepe’nin en gözde bölgesi olan Maşukiye’de, Sapanca Gölü’ne karşı konumlanan bu özel villa; modern mimarisi, ultra lüks iç tasarımı ve son teknoloji akıllı ev sistemiyle fark yaratıyor.
VİLLA ÖZELLİKLERİ:
Panoramik Sapanca Gölü Manzarası
Maşukiye’de prestijli konum – Hem doğaya hem şehir hayatına yakın
Modern Tripleks Mimari – 3 Katlı Ferah Yaşam Alanları
Özel Isıtmalı Yüzme Havuzu – 4 mevsim kullanım
Yerden Isıtma Sistemi – Tüm yaşam alanlarında konfor
Mutfak Özellikleri:
• Ultra Lüks Tasarım
• Porselen Tezgah – Hem estetik hem dayanıklı
• Özel dolap iç dizaynı, geniş kullanım alanı
• Modern ankastre set ve üst segment malzeme kalitesi
Giyinme Odası, Çamaşır Odası, 2 Depo Alanı
2 Teras + 2 Geniş Veranda – Doğayla iç içe açık hava yaşam alanları
Şömine
Açık otopark
Akıllı Ev Sistemi:
Isıtma, klima, aydınlatma, havuz ve tüm elektronik sistemleri cep telefonundan kontrol edilebilir
Toplam Kullanım Alanı ~370 m²
Öne Çıkan Avantajlar:
Maşukiye’nin en değerli lokasyonunda
Sapanca Gölü’ne karşı yaşam
Akıllı ev teknolojisiyle geleceğe hazır
Estetik, konfor ve fonksiyonelliği bir araya getiren mimari
Yüksek kira getirisi ve yatırım potansiyeli
 
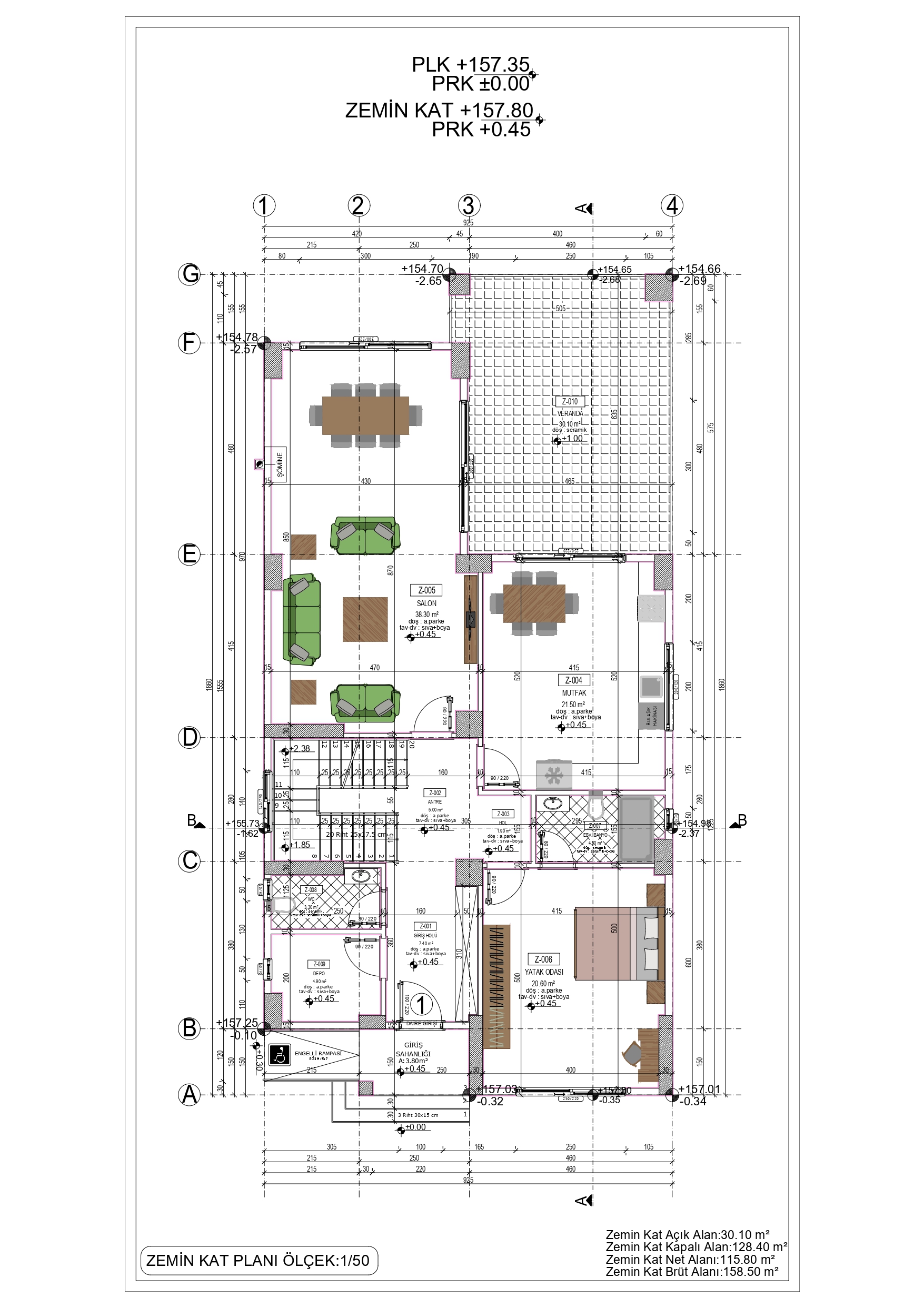
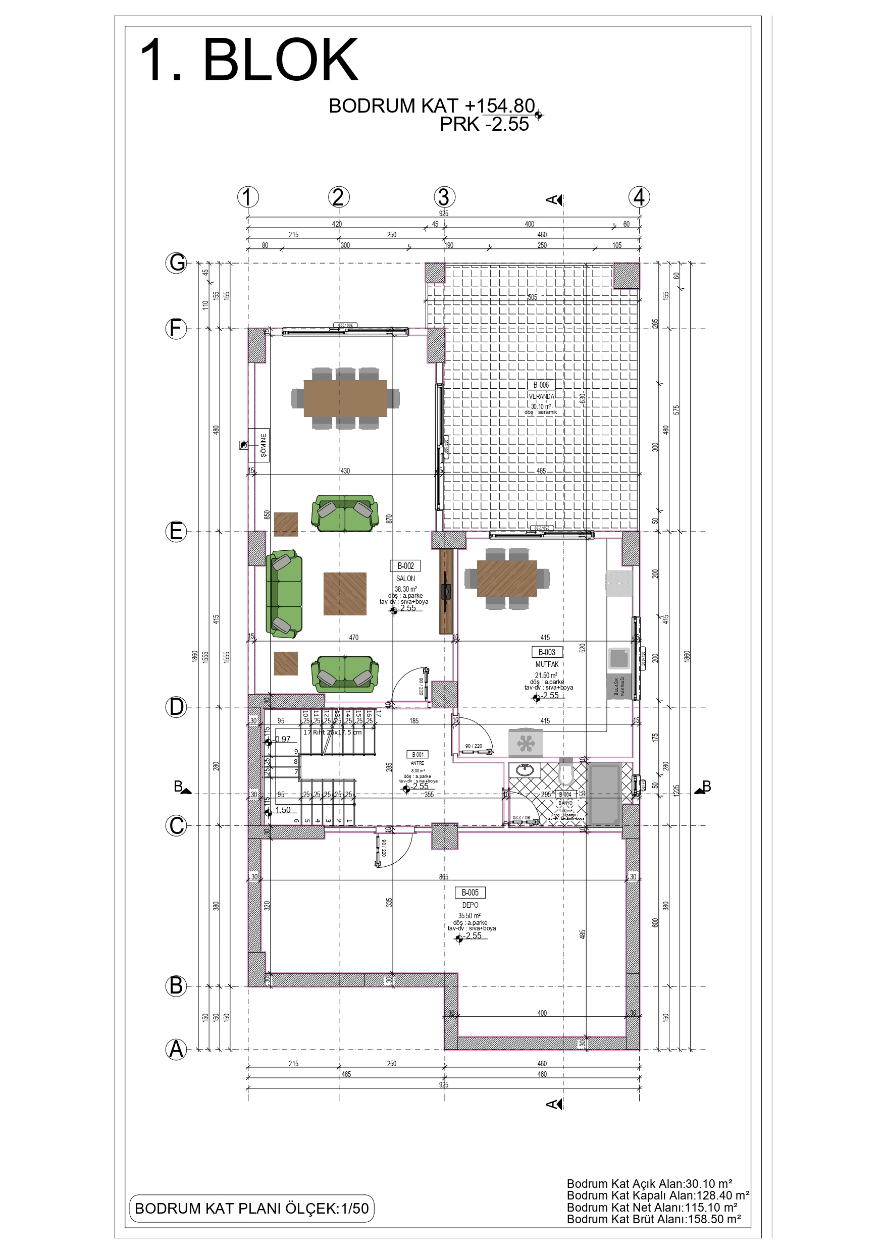
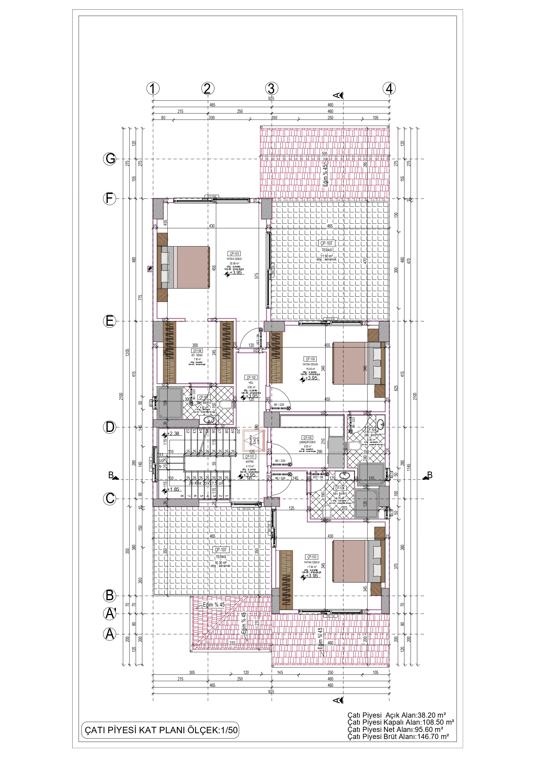
Oda Sayısı:
• 3 Salon (Bodrum ve Zemin katlarda 2 ayrı salon + 1 oturma alanı)
• 5 Yatak Odası
• 1 Giyinme Odası
• 1 Mutfak
• 1 Çamaşır Odası
• Toplam 5 Banyo (3’ü ebeveyn banyolu)
• 2 Geniş Teras
• 2 Veranda Alanı
• 2 Depo Alanı

1. Lüks ve Prestij Odaklı

Maşukiye’nin kalbinde, doğayla iç içe ama şehrin merkezine bir adım uzaklıkta…
Kendi özel havuzunuz, geniş bahçeniz ve modern mimarinizle gerçek lüksü yaşayın.
Her detayı incelikle tasarlanmış bu villalar, prestiji ve konforu aynı çatı altında sunuyor.

2. Yatırım ve Değer Vurgulu

Kartepe’nin gözdesi Maşukiye’de, değeri her geçen gün artan bir yatırım fırsatı!
Özel havuzlu, geniş bahçeli ve modern tasarımlı bu villalar, hem yaşamak hem de geleceğe yatırım yapmak isteyenler için benzersiz.
Sınırlı sayıdaki bu seçkin proje, ayrıcalıklı sahiplerini bekliyor.

3. Mimari Şıklık Vurgusu

Maşukiye merkezde, modern ve klasik mimarinin en zarif birleşimi…
Şık sütun detayları, geniş cam cepheleri ve ferah balkonlarıyla göz alıcı bir tasarım.
Kendi bahçeniz, özel havuzunuz ve estetikle bütünleşen bir yaşam sizi bekliyor.

4. Prestijli Dış Görünüş Odaklı

Her köşesi zarafeti yansıtan bir mimari: yüksek tavanlı geniş pencereler, ferah teraslar, estetik demir korkuluklar…
Maşukiye’nin merkezinde, dış görünüşüyle fark yaratan, ayrıcalıklı villalar.
Siz de bu prestijli yaşamın parçası olun.

5. Doğa ile Uyumlu Tasarım

Beyazın zarafeti, yeşilin huzuru ile buluştu.
Palmiye ağaçları, tropik bahçeler ve özel yüzme havuzlarıyla tatil havasında bir yaşam…
Maşukiye’nin en seçkin noktasında, göz kamaştıran mimarisiyle villalar sizi bekliyor.

 

Projemizde, en üst düzey güvenliği sağlamak amacıyla 9.0 şiddetindeki depremlere dayanabilecek nitelikte temel uygulaması gerçekleştirilmiştir.
• Beton Kalitesi: Temel imalatında C30 sertifikalı yüksek dayanımlı beton kullanılmıştır. Bu beton sınıfı, yüksek basınç ve darbelere karşı dayanıklılığıyla öne çıkar.
• Donatı (Demir) Sistemleri: Temelde, kalın kesitli ve standartlara uygun C sınıfı nervürlü demirler tercih edilmiştir. Bu sayede yapı, deprem sırasında oluşabilecek yatay ve düşey yükleri güvenle taşıyabilecek esnekliğe ve mukavemete kavuşmuştur.
• Mühendislik Hesapları: Tüm uygulama, deprem yönetmeliğine uygun statik ve zemin etüt raporları doğrultusunda hazırlanmıştır.
• Uygulama Kalitesi: Beton dökümünde modern vibrasyon teknikleri ve sürekli mühendislik kontrolü sağlanarak, boşluksuz ve dayanıklı bir temel elde edilmiştir.
 
 
Hayalinizdeki yaşam burada hayat buluyor!
Detaylı bilgi ve yerinde keşif için hemen bizimle iletişime geçin.

Proje Bilgileri

Villa: 4
Proje Alanı: 370 m2
Oda Sayısı: 5+2
Havuz: Isıtmalı Havuz
Isıtma: Yerden Isıtma Sistemi
Sistem: Akıllı Ev Sistemi

Konum

Bilgi Almak İçin

Bu proje hakkında detaylı bilgi almak için bizimle iletişime geçin.

Hemen Ara Mesaj Gönder